Architecte spécialisée dans le résidentiel à Londres, du contemporain au patrimoine.
J’aide à valoriser votre espace en optimisant les volumes et en créant des intérieurs élégants et adaptés à la vie moderne. Cela commence par la reconfiguration des plans pour améliorer le confort et aligner le projet sur les standards actuels.
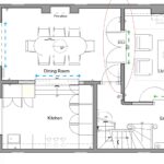
Je conçois également des cuisines contemporaines intégrant coin petit‑déjeuner, espace TV et larges ouvertures sur le jardin grâce à des menuiseries au style soigné.
Je peux vous accompagner dans une rénovation complète pour créer des intérieurs calmes et raffinés, ainsi que dans la conception de menuiseries sur mesure pour la vie moderne.
N’hésitez pas à me contacter, j’offre avec plaisir une première heure de consultation.
Cordialement,
Isabelle












